Urbanisme et constructionsPrésentation publique du projet de réaménagement de la cour de Grand-Champ
Rendez-vous le 12 décembre à 17h30 à la salle des colonnes à Grand-Champ pour découvrir le…
En savoir plusEn savoir plusLe collège secondaire de Grand-Champ, conçu et construit entre 1985 et 1992 par les architectes Mestelan et Gachet, se compose de deux corps bâtis rectangulaires distincts, lesquels sont disposés de part et d’autre d’une vaste esplanade minérale ouverte sur le paysage. Le volume le plus étroit accueille les espaces liés à l’enseignement (salles de cours et administration), auxquels on accède par un couloir central. Les activités publiques se déroulent dans l’autre volume, où se trouvent notamment un restaurant, un amphithéâtre et une salle de sports. Ces bâtiments créent un ensemble architectural homogène et ordonné. Une certaine monumentalité s’exprime de cette composition nettement inspirée des espaces publics classiques à péristyle sur cour.
(extraits de Architecture du Canton de Vaud, Marchand, Schroeter, 2021, p. 146)
Le projet de la rénovation et de la surélévation du Collège de Grand-Champ par les architectes du bureau Glauco Lombardi est en cours de finalisation, après une année et demie de travaux. Le nouvel étage sera rendu aux utilisateurs pour la rentrée scolaire 2025-2026.
Ce nouvel étage se compose de 12 salles de classes, d’une salle multimédia, d’une salle d'éducation nutritionnelle, de deux salles de réunion, de deux salles spécialisées, d’une salle double modulable et encore de trois salles facilement transformables en un seul grand espace.
Les travaux liés au projet de transformation de l’ancienne bibliothèque et de sa mezzanine en auditoire et en salle d’expositions débuteront à l'automne 2025.
Les étages existants (rez, 1er et 2e) offriront aux utilisateurs des espaces remis à neuf et conformes aux normes de sécurité incendie et d’efficacité énergétique actuelles.
La cour du collège s’apprête également à changer de visage. Pour aider à repenser cet espace central de plus de 7000 m² dans le cadre de la mise en œuvre du Plan Climat communal, la Ville de Gland a choisi de s’appuyer sur une démarche participative en conviant les usagers à un atelier organisé le mardi 10 juin 2025.
Réunis autour de plans et de croquis, élèves, direction de l’établissement, membres du Parlement des Jeunes, représentants d’associations et de manifestations, collaborateurs de la Commune, ont découvert l’avant-projet imaginé par le bureau Approches.
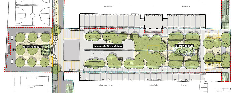
Inspirée du célèbre jardin de l’Alhambra à Grenade, leur vision conserve l’esprit architectural du site tout en faisant la part belle à la végétation et à la fraîcheur. Trois zones complémentaires sont prévues : un square de sport relié à la cour par des gradins et une rampe ; un espace de fête et de jeux propice à l’accueil d’événements ; ainsi qu’un jardin de pluie conçu pour créer une atmosphère agréable. Des canaux de pierre y mèneront les eaux pluviales jusqu’à un bassin peu profond, agrémenté de plantes de berge. L’ensemble serait ponctué de nombreux arbres, de revêtements perméables et de mobilier multifonction – notamment adapté à la pratique du skate.
L’objectif à ce jour est un démarrage du chantier de requalification de la cour en 2026.